Caspar Mackenzie

#

Cafe Hoffmann

Diploma Cafe Concept Project - 2017

Architectural Interior Design

Challenge

To design a concept for a cafe in Vienna. The cities cafés over the years they have been home to artist, writers and designers. Most famously the Vienna Secession. The design needed therefore to reflect that time in history and the people who might have inhabited the building.

Approach

I started this brief by exploring the Vienna Secession, with particular reference to Otto Wagner’s move away from Art Nouveau to Modernism. Otto’s design process focused on functionality, utilising new materials and new building technologies. I translated these constraints into the modern age. His apartment blocks were so functional that they were hosed down inside and outside every three years by the fire department. Utilising Josef Hoffman’s name for the cafe, coupled with Otto Wagner’s design theory, represents the conflicting views of the members of the Vienna Secession that eventually caused its dissolution in 1905. Dubai wants to have 25% of their buildings printed by 2050, I wanted to create a method of interior decoration that could be printed with the building.

Outcome

I used modern equivalents of Otto Wagner’s design theory and focused 3D Printing, Glass Fibre Reinforced Concrete, Aluminium Foam and Epoxy Resin. The façade used shape memory alloy in the shape of petals which would close when hit with direct sunlight to create a reactive shade. Fixed structures would be 3D printed in place with glass reinforced concrete. Bar stools and lighting would be printed from locally sourced recycled plastics. The floor would be covered in a Metallic Epoxy, this is hard wearing and hygienic. Tables would be made from aluminium foam, which is light weight but as strong as steel.

Eating Zone

#

Eating Zone

#

Materials

#

Smart Metal

#

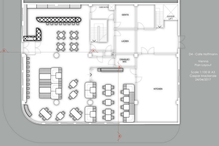
Floor Plan

#

Sections

#